在线客服
免费咨询热线

欢迎访问起重设备

返回引导页

首页

产品展示

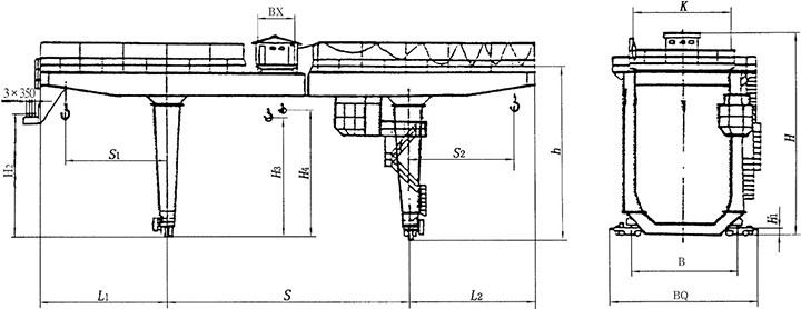
U型10~50/10吨双梁吊钩门式起重机

  • U型10~50/10吨双梁吊钩门式起重机
  • 详细介绍
  •  

     

    该机适用于大跨度、装卸作业频繁的铁路货场、港口、露天仓库、集装箱中转站等。该机采用U型门架,其过腿净空大(近7m),适用于长大笨重货物和集装箱装卸作业。该机导电形式有滑触线和电缆两类,优先推荐滑触线形式,订货时应明确导电形式和位置。

     

  • 上一个:暂无 下一个:暂无返回产品列表