欢迎访问起重设备
返回引导页欢迎访问起重设备
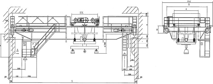
返回引导页产品展示

本起重机带有可旋转挂梁,适用于钢厂、船厂、港口、堆场和仓储等室内或露天的固定跨间,装卸及搬运钢板、型钢、盘卷等物料。特别适用于吊运不同规格且需水平旋转的场合。挂梁为十字架结构,可靠及安全性好,具有一定的防摇摆功能。挂梁下可以携带电磁吸盘、夹钳等专用吊具。
注:
1、进入司机室的走台方式为:端入、侧入、顶入;
2、起重量包含挂梁及专用吊具白重;
3、挂梁最大旋转角度为±180°;
4、图示极限位置尺寸S1、S2为挂梁旋转90°后,挂梁中心线距轨道中心线数据;
5、以下所有数据为室内使用时;
6、参数表中起重机总功率为行车本体功率,不含专用吊具功率
