欢迎访问起重设备
返回引导页欢迎访问起重设备
返回引导页产品展示



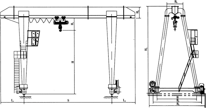
MH型5~20吨电动葫芦门式起重机(桁架式)
简介
MH型电动葫芦门式起重机与CD、MD等型号的电动葫芦配套使用,是一种有轨运行的中小型起重机,其适用起重量5~20吨,适用跨度12-30米,工作环境-20℃~+40℃内。
本产品为一般用途起重机,多用于露天场所及仓库的装卸或抓取物料,本产品有地面操纵和室内操纵两种型式。
MH型3~20吨电动葫芦门式起重机(箱型式)
简介
MH型电动葫芦门式起重机与CD MD等型号的电动葫芦配套使用,是一种有轨运行的中小型起重机,其适用起重量3~20吨,适用跨度12~30米,工作环境-20℃~+40℃内。
本产品为一般用途起重机,多用于露天场所及仓库的装卸或抓取物料,本产品有地面操纵和室内操纵两种型式。



