在线客服
免费咨询热线

欢迎访问起重设备

返回引导页

首页

产品展示

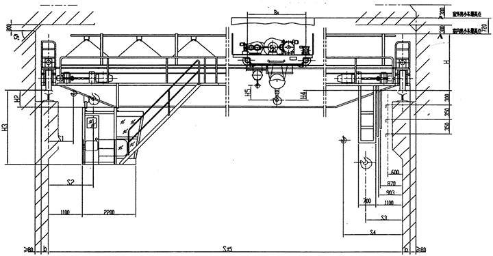
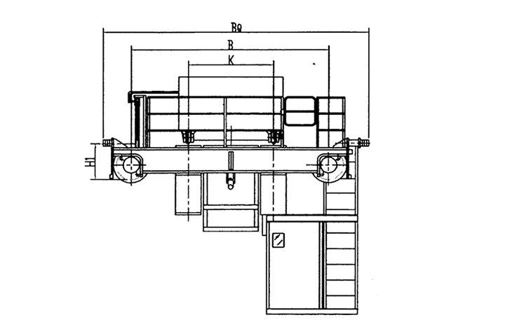
QD型75/20~100/20吨吊钩桥式

  • QD型75/20~100/20吨吊钩桥式
  • 详细介绍
  •  

    QD型75/20~100/20吨吊钩桥式起重机
    QD Type 75/20~100/20t Hook Bridge Crane
     
    主钩分单钩、双钩两种

     

  • 上一个:暂无 下一个:暂无返回产品列表