在线客服
免费咨询热线

欢迎访问起重设备

返回引导页

首页

产品展示

QD型5~50/10吨吊钩桥式起重机

  • QD型5~50/10吨吊钩桥式起重机
  • 详细介绍
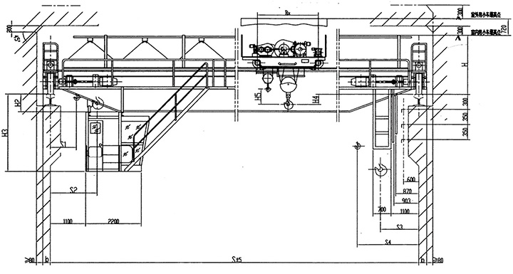
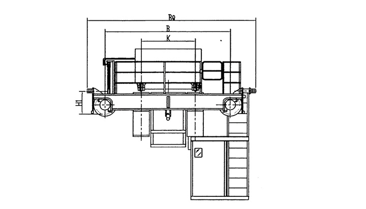
  • QD型吊钩桥式起重机,主要由桥架、大车运行机构、小车、电器设备等组成。根据使用频繁程度不同,分为A5、A6二种工作级别。
    该起重机动作操纵全部在司机室内完成。


  • 上一个:暂无 下一个:暂无返回产品列表