在线客服
免费咨询热线

欢迎访问起重设备

返回引导页

首页

产品展示

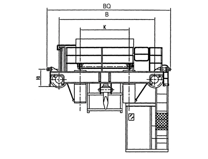
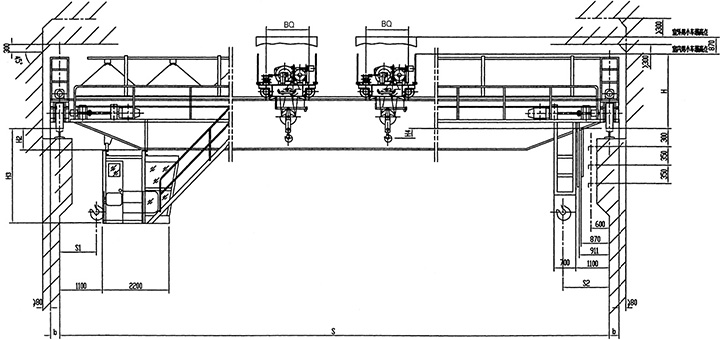
QE型5~16吨双小车吊钩桥式

  • QE型5~16吨双小车吊钩桥式
  • 详细介绍
  •  

    本起重机有两台小车,两小车可以同时使用,也可以单独使用,适用于厂矿企业的车间或露天仓库吊运长件材料(木材,纸筒,管封,棒材)。
       
    注:  1.大车导电有角钢和安全滑触线两种形式,供选择。
          2.操纵形式有室操(分开式和闭式),地操和遥控三种,供选择。

     

     

     

     

  • 上一个:暂无 下一个:暂无返回产品列表