在线客服
免费咨询热线

欢迎访问起重设备

返回引导页

首页

产品展示

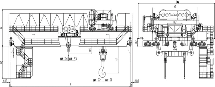
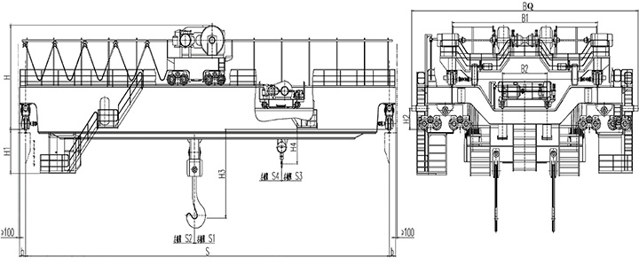
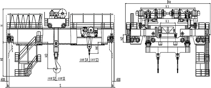
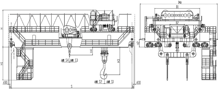
YZS型四梁铸造桥式起重机

  • YZS型四梁铸造桥式起重机
  • 详细介绍
  •  

    YZS型125/32~320/80吨四梁铸造桥式起重机

  • 上一个:暂无 下一个:暂无返回产品列表